说明如何利用亿图图示软件绘制“房间布局图”

公务办理
晋国王少 2022-09-30 10:19:56
如何利用亿图图示软件绘制“房间布局图”呢?小编就和大家来分享一下:
  • 品牌型号:ThinkPadL14
  • 系统版本:windows 10专业版
  • 软件版本:亿图图示12.0.3

方法/步骤

1/4分步阅读

打开“亿图图示”软件

[图]2/4

点击“新建”-“工程”中的“平面布置图”分类

[图]3/4

在“平面布置图”分类中选择“布局图”

[图]4/4

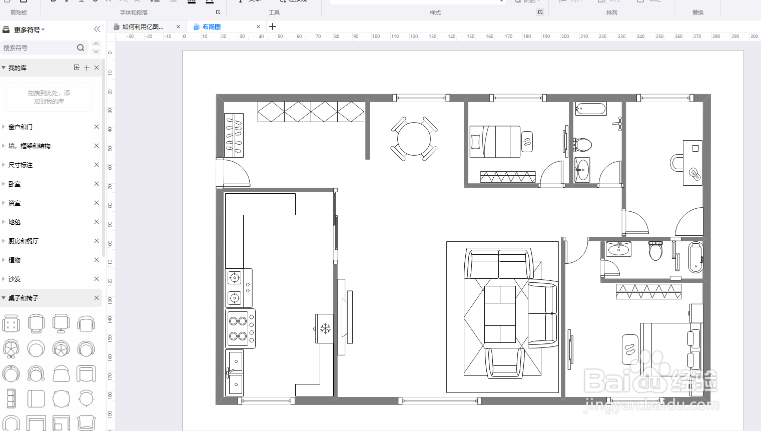
利用模板绘制一个“房间布局图”,效果如下

[图]亿图图示房间布局图

编辑于2022-09-30,内容仅供参考并受版权保护

相关热门经验知识

  1. 怎样快速记忆英语单词

    我们在初高中学习英语时常常比较侧重于语法的学习,往往忽视了词汇量的积累,而掌握词汇量的多少已经成为衡量一个人外语水平的重要标志。有时或许我们也认识到了这一点,但往往记忆的效果不理想,也做不到持之以恒,常常是即兴记忆。...

  2. 2021年的法定节假日怎样安排的?

    2021年的法定节假日有元旦节、春节、清明节、劳动节、端午节、中秋节和国庆节。每个法定节假日该休息哪几天呢?下面我们一起来了解下吧。提前了解法定节假日的安排,可以提前计划出行,出行的时候建议要注意安全。 ...